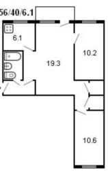
Планы 3к квартир ХРУЩЕВКИ (№ 212-857-168)
Цена: 100 000 $

Планироки, Каменское, Каменское, Днепропетровская
Характеристики
| Цена: | 100 000 $ |
|---|---|
| № объекта: | 212-857-168 |
| Комнат: | 3 |
| Автономка: | - |
| Планировка: | Хрущевка |
| ГОРЯЧИЕ предложения: | - |
| Кв-ра ЭЛИТ-класса: | - |
| Видовая: | + |
Описание
Планы 3к квартир ХРУЩЕВКИ







