Продам будинок Романково ( р-н Ціолковського) (№ 22-444-424)
Цена: 45 000 $

Адрес: Циолковского, Каменское, Каменское, Днепропетровская, Новые Черемушки
Характеристики
| Цена: | 45 000 $ |
|---|---|
| № объекта: | 22-444-424 |
| Этажей: | 1 |
| Спален: | 4 |
| Площадь дома: | 77 м2 |
| Участок: | 6 сот |
| Эксклюзив: | - |
| Ремонт: | - |
| Жилой: | + |
| Под ремонт: | - |
| Е-оселя: | - |
| Е-відновленя: | - |
| ГОРЯЧЕЕ предложение: | - |
Описание
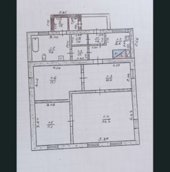
Продам будинок (селище Романково, район вул. Циолковського)
Площа ділянки - 600 м2
Площа будинку - 77 м2
У будинку:
4 кімнати (2 роздільні, велика вітальня та прохідна гардеробна), кухня, велика ванна, санвузол (+тепла підлога)
Індивідуальне опалення (двоконтурний котел), металопластикові вікна (+решітки на вікнах), кондиціонер, дві вхідні двері (одна залізна, друга пластикова)
Частково замінена проводка (у кімнатах з ремонтом), комунікації опалення та водопостачання замінені повністю, встановлені лічильники на світло, газ, воду
Стан будинку на фото
На території ділянки також присутні:
літня кухня (3 окремі кімнати, одна з газом)
теплиця
погреб (з вентиляцією)
крапельний полив огороду
В пішохідній доступності (10-15 хвилин) вся інфраструктура району Черемушки
Заборгованості за комунальні послуги немає










